


Funksjoner og detaljer



Trehytte med redskapsbod i solid og holdbar nordisk gran. Redskapsboden har to separate rom, ett med en enkelt dør, ett med en dobbeltdør med et vindu. Du kan bruke begge rommene til oppbevaring av hageredskaper, maskiner, sykler, grillen og mye annet – eller du kan bruke det store rommet som et verksted, for kreative aktiviteter eller for å ha et sted til å slappe av. NB! Takpapp er ikke inkludert! Vær oppmerksom på at dør- og vinduskarmene er hvitmalte. Modularo® er et moderne livsstilsvaremerke med varige kvalitetsprodukter i solid treverk og et moderne design, som gjør hagelivet enda rikere og hyggeligere.
Produktspesifikasjoner
-
DørtypeDouble hinged door
-
MaterialeVanlig gran (Picea Abies)
-
FargeLysegrå
-
Takvinkel (⁰)19
-
Veggplatetykkelse (mm)44
-
Sidehøyde (m)2.11
-
VarenummerWC165582
-
Gulvplatetykkelse (mm)18
-
Takplatetykkelse (mm)18
-
Ytre Lengde (m)2.88
-
Ytre Bredde (m)4.3
-
Takutspring (cm)20
-
Indre Lengde (m)2.312
-
Indre Bredde (m)3.768
-
Vekt (kg)1010
-
Mønehøyde (m)2.51
-
Veggpaneltykkelse (mm)44
-
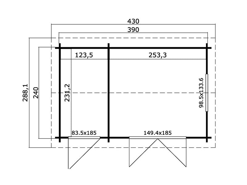
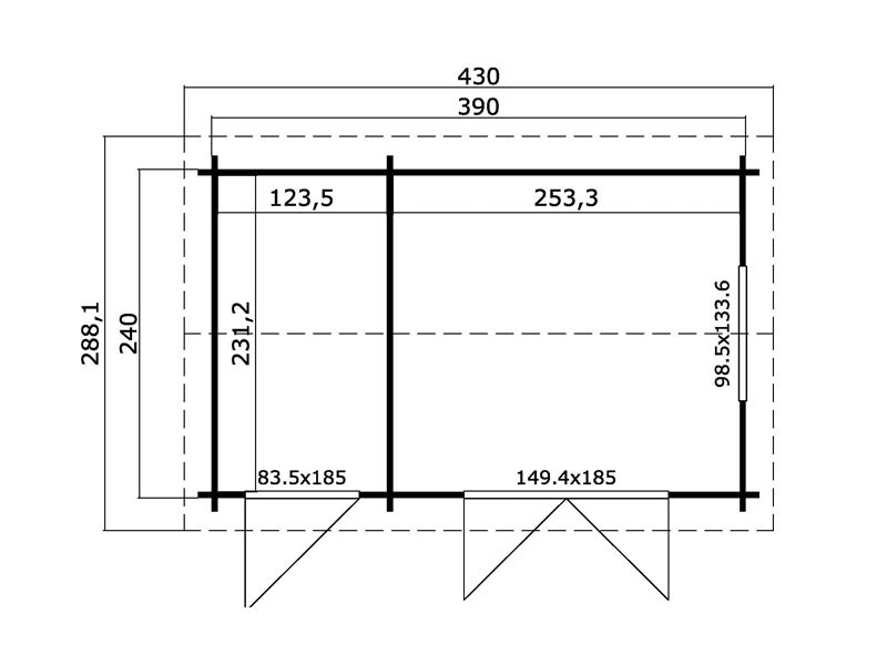
Dør BxH (m)1,49x1,85/0,83x1,85
- Trehytte med to separate rom
- Ett rom med dobbeltdør med glass og vindu
- Ett rom med enkeltdør
- Laget av holdbar og vakker nordisk gran
- Tregulv inkludert
- Dobbeltdøren gir enkel adkomst
- Vindu og dør gir dagslys inne i det store rommet
- Begge dørene kan låses
- Dobbeltdør 149,4 x 185 cm
- Enkeltdør 83,5 x 185 cm
- Vindu 98,5 x 133,6 cm
- Perfekt til oppbevaring av hageredskaper og mye annet
- Kan også brukes som verksted
- Takpapp er IKKE inkludert
- Alle deler er prefabrikkerte
- Enkel montering
- Trebeskyttelse må påføres etter montering
- Lite rom 2,85 m²
- Stort rom 6,1 m²
Trehytte med to separate rom. Du kan bruke begge rommene til å lagre hageredskap, maskineri, sykler, grill og mye annet – eller du kan bruke det lille rommet som en redskapsbod og det store rommet som et verksted, et sted å slappe og mye annet. Den brede dobbeltdøren med glass, sammen med det store vinduet i endeveggen, gir naturlig lys inne i det store rommet på dagtid. Det lille rommet har en enkeltdør og ingen vinduer. Begge dørene kan låses med den innebygde sylinderlåsen for å beskytte alt som oppbevares på innsiden.
Hytta i tre leveres som et prefabrikert monteringssett. Vi anbefaler at dere er to til jobben, men det kreves ingen spesialverktøy. Du følger ganske enkelt den detaljerte monteringsanvisningen. Redskapsboden er laget av naturlig treverk, så vi anbefaler at du behandler den med en trebeskyttelse av høy kvalitet så snart som mulig etter montering. Velg en farge du liker eller bruk en transparent trebeskyttelse, slik at du kan nyte det vakre treverket på permanent basis.
Modularo® er et moderne livsstilsmerke som fokuserer på høy kvalitet, holdbarhet og komfort. Varemerket består av et stort spekter av holdbare treprodukter som redskapsboder, hagepaviljonger, drivhus, gapahuker og trehytter som gjør hagelivet enda bedre og hyggeligere på en permanent basis. Varemerket har et elegant design, funksjonalitet og gode steder å oppholde seg.
Last ned manual
Hytte med redskapsbod i tre, Maardu 3,9x2,4x2,51m, 44mm, Lysegrå
Funksjoner og detaljer








